Tylko u Nas! Na sprzedaż wyjątkowe mieszkanie o powierzchni 82,60 m² z piwnicą wielkości mieszkania! Położone na pierwszym piętrze w zadbanej kamienicy
w centrum Bydgoszczy, przy ulicy Marcinkowskiego z widokiem na rzekę Brdę. To doskonała propozycja inwestycyjna – układ oraz metraż lokalu dają szerokie możliwości adaptacyjne.
Możliwe warianty wykorzystania nieruchomości: Podział na 3 niezależne kawalerki – idealne pod wynajem krótko- lub długoterminowy (ROI ok. 10%) Podział na mieszkanie oraz lokal usługowy – np. salon kosmetyczny, biuro lub gabinet Adaptacja na przestronne mieszkanie dla rodziny lub pod wynajem premium
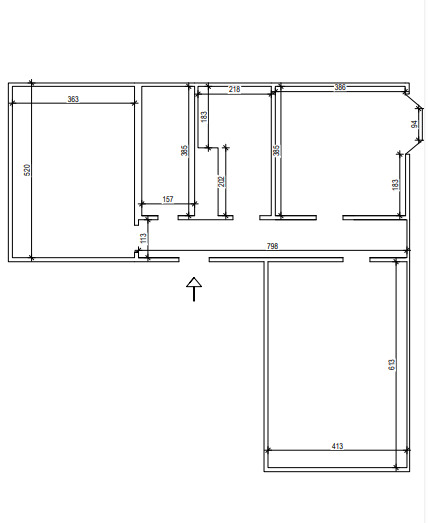
Aktualny układ mieszkania:
- Pokój rodzinny / wielofunkcyjny – 25,42 m²
- Salon – 18,30 m²
- Sypialnia – 14,72 m²
- Kuchnia – 6,92 m²
- Łazienka – 5,88 m²
- Przedpokój – 11,17 m²
piwnica- około 40 m²
Układ po podziale na 3 kawalerki:
- 1 lokal – 24,3 m²
- 2 lokal – 19,4 m²
- 3 lokal – 24,8 m²
- Pomieszczenie techniczne – 3 m²
- Korytarz – 9 m²
Dodatkowe atuty: - Parking na terenie kamienicy (za bramą)
- Duża piwnica – dodatkowa przestrzeń magazynowa lub inwestycyjna
Lokalizacja: - Rzeka Brda i Skwer Czakiego – tuż obok
- Opera Nova – 300 m
- Plac zabaw – 10 m
- Siłownia – 300 m
- Restauracje, kawiarnie, sklepy i galerie handlowe w zasięgu kilku minut
- Przystanki autobusowe i tramwajowe – 200 m
- Dworzec kolejowy – ok. 2 km
Na życzenie oferujemy przygotowanie kompletnego projektu podziału i wykończenia wraz z kosztorysem inwestycyjnym oraz możliwością realizacji prac pod klucz.
Serdecznie zapraszamy do kontaktu w celu uzyskania szczegółowych informacji oraz umówienia się na prezentację nieruchomości.
Daria Wruck