Inwestycja w sercu Bydgoszczy – mieszkanie 82,6 m² z potencjałem podziału na 3 kawalerki!Na sprzedaż wyjątkowe mieszkanie o powierzchni
82,60 m² z piwnicą wielkości mieszkania!
Położone na pierwszym piętrze w zadbanej kamienicy w centrum Bydgoszczy, przy ulicy Marcinkowskiego
z widokiem na rzekę Brdę.
To doskonała propozycja inwestycyjna –
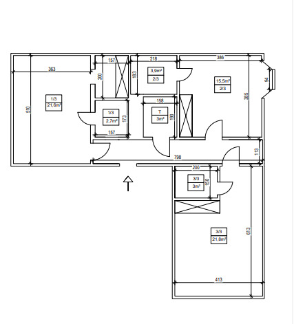
układ oraz metraż lokalu pozwalają na podział na 3 niezależne kawalerki, idealne pod wynajem krótko- lub długoterminowy. Po potencjalnym podziale i remoncie
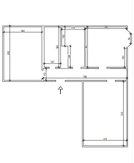
ROI wynosi ok. 9%.Aktualny układ mieszkania: - Pokój rodzinny / wielofunkcyjny – 25,42 m²
- Salon – 18,30 m²
- Sypialnia – 14,72 m²
- Kuchnia – 6,92 m²
- Łazienka – 5,88 m²
- Przedpokój – 11,17 m²
Układ po podziale:- 1 lokal- 24,3 m²
- 2 lokal- 19,4 m²
- 3 lokal- 24,8 m²
- pomieszczenie techniczne- 3 m²
- korytarz- 9 m²
- piwnica- ok. 40 m²
Parking– na terenie kamienicy za bramą.
Lokalizacja: - Rzeka Brda i Skwer Czakiego – tuż obok
- Opera Nova – 300 m
- Plac zabaw – 10 m
- Siłownia – 300 m
- Restauracje, kawiarnie, sklepy i galerie handlowe w zasięgu kilku minut
- Przystanki autobusowe i tramwajowe – 200 m
- Dworzec kolejowy – ok. 2 km
Na życzenie oferujemy przygotowanie kompletnego projektu podziału i wykończenia wraz z kosztorysem inwestycyjnym oraz możliwością realizacji prac pod klucz.
Serdecznie zapraszamy do kontaktu w celu uzyskania szczegółowych informacji oraz umówienia się na prezentację nieruchomości.